Go to StartPage
   
 News & Events
 Products
 LIRA®
 MONOMAKH®
 Version History
 Download Centre
 Publications
 Price list
 Company
 Contact Us
 Partners





 
User Area
Username
Password
Remember me on this computer
  Forgot your password?

  Products Monomakh

MONOMAKH software

MONOMAKH ®

Modules
BUILDING
BEAM
COLUMN
FOOTING
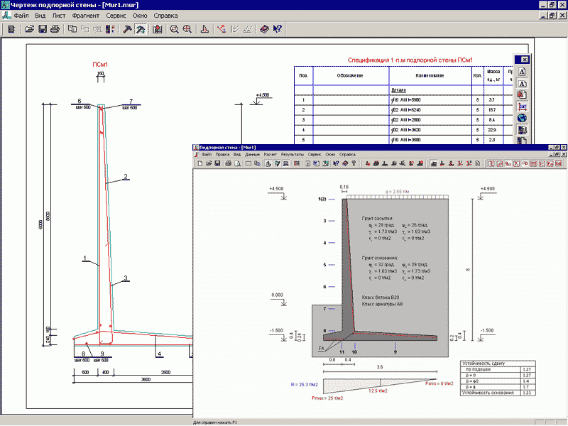
REWALL
SLAB
DIAPHRAGM
BRICK
SOIL
        Operating systems: Windows 95/98/МE, Windows NT/2000/ХР
        Analysis of the whole structure and its structural elements
        The software supports building codes of Ukraine, Russia and CIS (Commonwealth of Independent States)
        Working drawings and reinforcement patterns may be obtained
        Interrelation with AutoCAD, ArchiCAD and DEF-PC
        Design models can be imported to LIRA software
        Technical Support during the first twelve months after purchase (term of Technical Support may be extended)
MONOMAKH software is intended for analysis and design of monolithic reinforced concrete structures and structures with brick walls. It is possible to perform analysis of the whole structure or its separate parts and generate working drawings and reinforcement patterns for structural elements.

MONOMAKH software includes several modules: BUILDING, BEAM, COLUMN, FOOTING, REWALL, SLAB, DIAPHRAGM, BRICK. These modules are integrated but they may work in stand-alone mode as well.

BUILDING module.
Model of the structure is generated from structural elements (STE). Loads are collected automatically, sections of structural elements can be determined and checked. You can generate 3D design model of the structure, perform finite element analysis and evaluate analysis results. Bill of materials is generated. Data may be exported to other modules of MONOMAKH software. Loads on footings are exported to DEF-PC and design model is exported to LIRA software.

Modules BEAM, COLUMN, FOOTING, REWALL, SLAB, DIAPHRAGM, BRICK.
Can be used in stand-alone mode or you may work with data defined in BUILDING module. Analysis and design of reinforced concrete elements. Analysis results in the form of working drawings. DXF file of the drawing and text files of reports are generated.

All modules contain extensive help system where you can find detailed information about options and tools of the module.

You can create and analyse design models of the structure in the shortest possible time and produce fully detailed reinforced concrete drawings with minimum effort.





Printable version
Search
Search
   

Contact Us

of. 209, Kadetskiy Gay, 6-a St.,
Kiev 03048, Ukraine

E-mail: international@lira.kiev.ua
Copyright © 2003-2011 LIRA Soft Ltd.
All Rights Reserved.